0 bd. 3 ba. 202.00m2
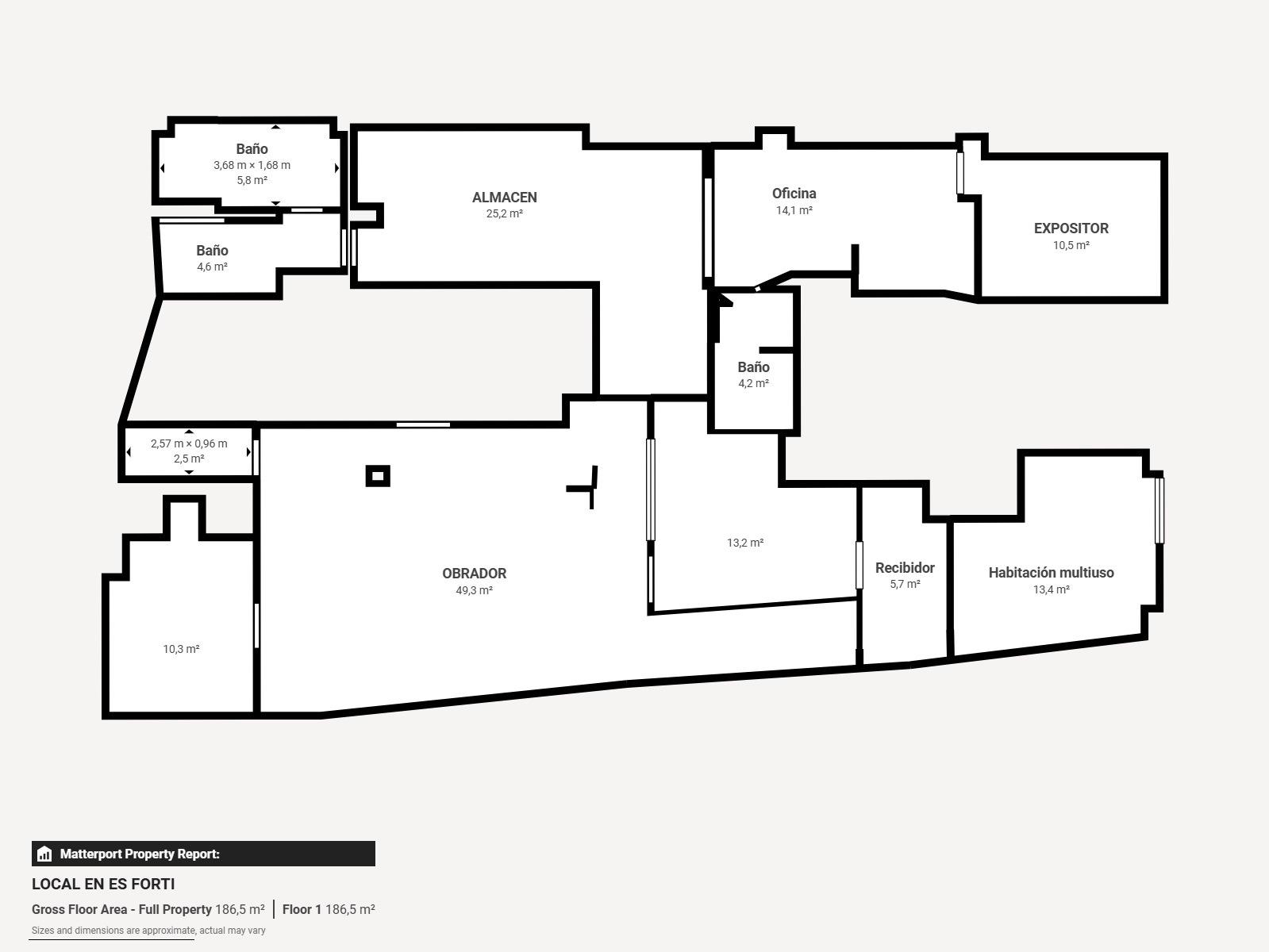
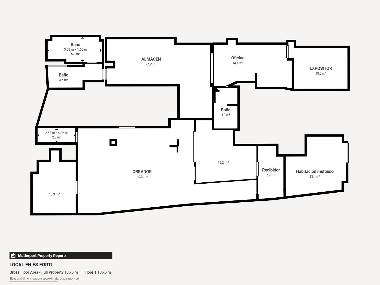
Local comercial de 202 m² construidos y 180,3 m² útiles, con licencia de actividad industrial en vigor, lo que permite su puesta en funcionamiento inmediata o la adaptación a nuevos proyectos empresariales. Oportunidad para inversión o negocio propio.
Ubicado en el barrio de El Fortí, una zona céntrica y bien comunicada de Palma. Situado en planta baja, espacio versátil con varias dependencias, acceso a pie de calle y escaparate visible. Excelentes comunicaciones con el centro y las principales avenidas de la ciudad.
Características:
- 202 m² construidos / 180,3 m² útiles.
- Distribución funcional con diferentes áreas de trabajo, almacenamiento, despacho, vestuarios y sala auxiliar con acceso independiente.
- Un baño, dos aseos y zona de vestuario para personal.
- Instalaciones eléctricas, ventilación y climatización adaptadas a normativa vigente.
- Techos altos, buena ventilación y salida de humos.
- Cerramientos de aluminio y barrera metálica enrollable.
- Posibilidad de entrega con equipamiento, según acuerdo con la propiedad.
- Apto para obrador artesanal, pequeño taller, laboratorio, coworking gastronómico, centro de producción alimentaria o actividades similares con o sin atención directa al público.
Precio: 390.000 €
Consulta sin compromiso.
Registro ROAIIB GOIBE 792083/2024

Information

Reference
13286/1006
Kind of property
Local comercial
City
Palma de Mallorca
Zone
El Forti
Height
0
Plant
0
Postal code
07011

Characteristics

Bedrooms
0
Bathrooms
1
Toilets
2
Antiquity
1977
Distance from the beach
1000 metros
Useful surface
180.00m2
Builded surface
202.00m2
State
Buen estado
External woodwork
Aluminio
Interior carpentry
Madera
Orientation
Sureste
Kitchen

Features

Gas city
Energy rating Contributed
Consumption kW h/m2 Year
Emissions Kg CO2/m2 Year
A
More efficient
229.1
71.3
B
C
D
E
F
G
Less efficient
Contact the agent