4 bd. 2 ba. 158.00m2
Te invitamos a descubrir este impresionante piso en la codiciada zona de Avenidas, una de las zonas más prestigiosas de Palma con todos los servicios y necesidades a tu disposición. Con 158 m² construidos (147 m² útiles), destaca por su amplitud, encanto y homogeneidad, así como la luz natural que inunda todos los rincones de la vivienda. Los espacios abiertos y despejados, crean una sensación de confort y comodidad abundantes. Además, cuenta con una reforma integrada llevada a cabo en el año 2017 con materiales de alta calidad, lo cual aporta un toque moderno y sofisticado.
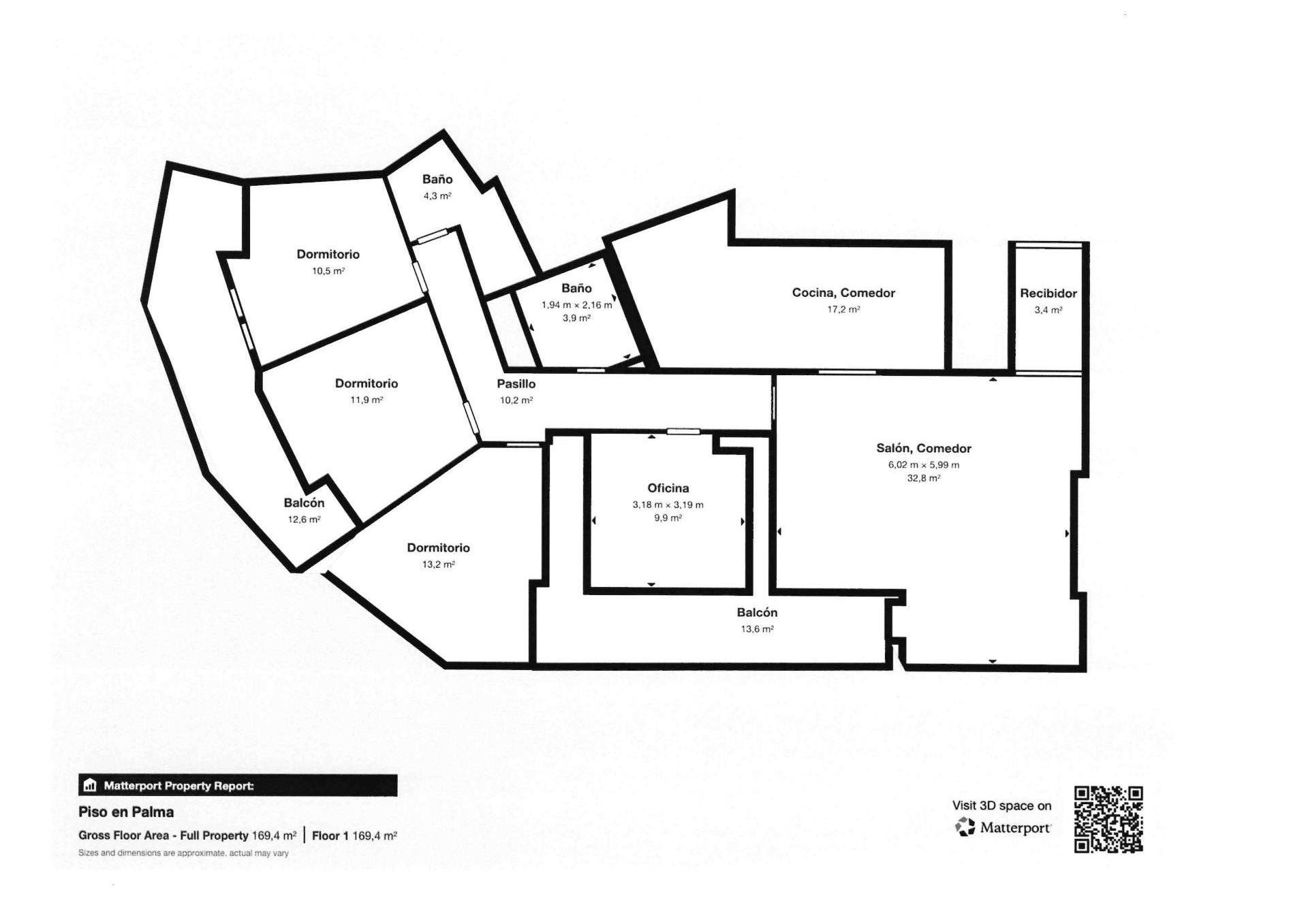
El inmueble está estratégicamente distribuido en cuatro habitaciones dobles bien iluminadas, ideales para familias o para quienes buscan espacio adicional, con armarios empotrados en todas las habitaciones, para optimizar el espacio. Cuenta también con dos baños completos, uno de ellos en suite con ducha y otro para invitados con bañera. Dispone también de zona de coladuría, con lavadora y secadora, así como una pila para lavar a mano las prendas más delicadas.
En cuanto al recibidor, gracias a su diseño funcional, brinda un mejor aprovechamiento del espacio, junto con el salón-comedor, de generosos 35 m², resulta una combinación perfecta tanto para organizar entretenidas reuniones familiares como para disfrutar esos codiciados momentos de relax al final de día. Sin dejar de lado la cocina office totalmente equipada, con una amplitud aproximada de 17 m², para ofrecer un entorno cómodo y funcional a la hora de preparar tus platos favoritos.
La vivienda dispone de acceso a 2 balcones que envuelven la fachada de la vivienda, con acceso tanto desde el comedor como desde las habitaciones, lo cual permite aprovechar plenamente el agradable clima mediterráneo durante todo el año.
Entre sus destacables características podemos añadir:
-Ventanas exteriores de aluminio con climalit doble, que aportan abundante luz natural y una máxima insonorización.
-Puerta blindada de seguridad para garantizar el bienestar y tranquilidad de toda la familia.
-Aire acondicionado central en 2 habitaciones y comedor, para repartir el frío/calor de forma homogénea.
-Descalcificador para optimizar la calidad del agua.
-Pre instalaciones de televisión en todas las habitaciones para que nadie se aburra en casa.
-Entorno agradable y seguro para vivir sin preocupaciones añadidas.
-Opción de adquirir plaza de aparcamiento privada.
La ubicación es inmejorable: en pleno centro de Palma, bien comunicada por transporte público, con autobuses cercanos, centros comerciales, colegios públicos y privados, y hospitales a poca distancia. Además, el barrio dispone de zonas infantiles y espacios tranquilos ideales para familias.
En resumen, este piso ofrece una combinación perfecta de espacio, confort y ubicación privilegiada, convirtiéndose en una oportunidad única para disfrutar de una vida de ensueño en Palma de Mallorca.
El precio de venta publicado no incluye los gastos derivados de la compraventa, tales como el Impuesto de Transmisiones Patrimoniales (ITP) o IVA, gastos notariales, registrales ni otros gastos que legalmente correspondan al comprador.
Precio vivienda:799.500 euros / Parking (opcional): 35.000 euros.
GOIBE729688/2024

Information

Reference
E-0470/3279
Kind of property
Piso
City
Palma de Mallorca
Zone
Centro
Plant
4
Postal code
07006

Characteristics

Bedrooms
4
Bathrooms
2
Antiquity
1969
Community fees
100€/month
Useful surface
147.00m2
Builded surface
158.00m2
State
Buen estado
External woodwork
Aluminio Climalit
Interior carpentry
Madera
Type of soil
Parquet
Kitchen

Features

Gas city
Bright
Reinforced door
Energy rating Contributed
Consumption kW h/m2 Year
Emissions Kg CO2/m2 Year
A
More efficient
B
C
D
E
F
G
Less efficient
133
35
Contact the agent