Sale
0 bd. 0 ba. 40.00m2
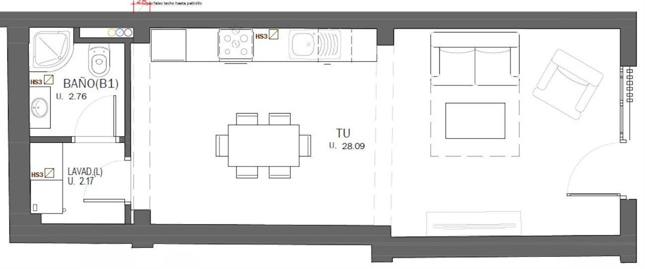
Garaje en venta con cambio de uso a vivienda en tramitación en zona Plaza de Toros.
El inmueble dispone de:
- 33,76 m² útiles.
- 40 m² construidos.
- 3,34m de altura de techo.
- Acceso directo desde la calle.
Además no está sujeto a régimen de Vivienda de Precio Limitado, por lo que su precio es libre.
Desde el punto de vista técnico, cumple las condiciones básicas para su transformación en vivienda tipo estudio conforme a la normativa de habitabilidad de Baleares:
- Superficie útil superior a los 28 m² mínimos exigidos para estancia todo uso (TU).
- Altura libre superior a 2,40 m exigidos en edificaciones existentes.
- Posibilidad de configuración de vivienda con una estancia principal y baño independiente.
- Fachada a vía pública que permite resolver iluminación y ventilación natural.
El inmueble se entrega en estado actual, sin reforma.
Ubicado en zona Plaza de Toros, una zona consolidada con todos los servicios (transporte, comercios, etc.), lo que lo hace adecuado tanto para uso propio como para inversión.
Para más información o concertar una visita, contactar.
El precio incluye honorarios de agencia. No incluye impuestos (ITP), notaría ni registro.

Information

Reference
1824/2991
Kind of property
Local comercial
City
Palma de Mallorca
Zone
Plaza de Toros
Plant
0
Postal code
07004

Characteristics

Bedrooms
0
Useful surface
33.70m2
Builded surface
40.00m2
State
Para reformar

Features

Energy rating In process
Consumption kW h/m2 Year
Emissions Kg CO2/m2 Year
A
More efficient
B
C
D
E
F
G
Less efficient
Contact the agent