Obra nueva
4 habs. 5 bañ. 290m2
A tan solo 5 minutos del pintoresco pueblo de Art, en una espectacular parcela de ms de 31.000 m, se alza esta propiedad nica que combina tradicin, naturaleza y diseo contemporneo. Lo que en su da fue una histrica vaquera se ha transformado en un proyecto residencial exclusivo para los amantes del campo y la vida mediterrnea.
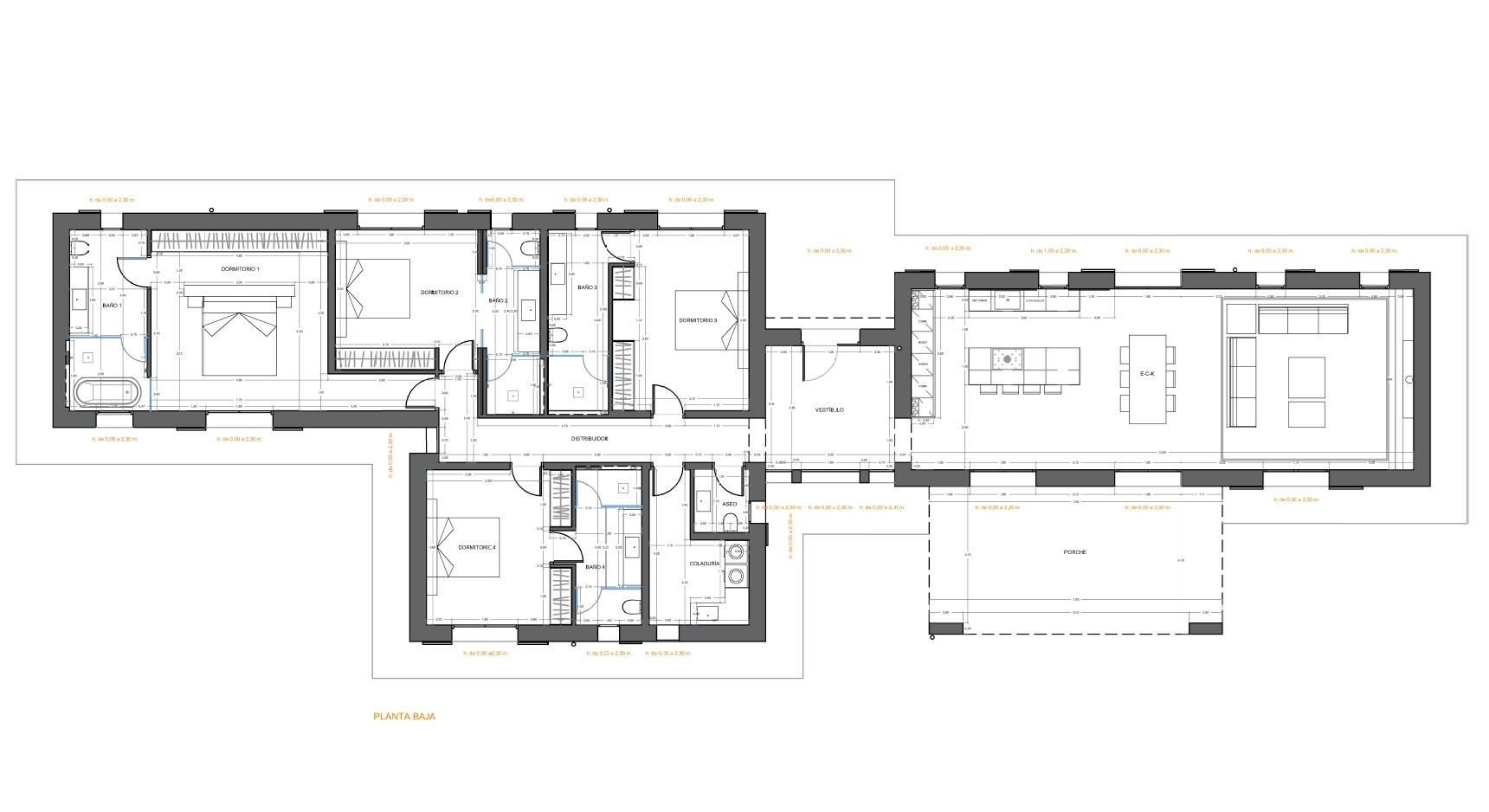
La vivienda, de 290 m en una sola planta, destaca por su arquitectura elegante y funcional, con espacios amplios, luminosos y unas impresionantes vistas al entorno natural y al majestuoso Sant Salvador, que ilumina las noches de la finca.
Distribucin y espacios:
- Amplio saln-comedor con ambientes diferenciados y acceso directo al exterior por ambos lados.
- Moderna cocina de diseo abierta, totalmente equipada.
- 4 suites exteriores, todas con salida a la terraza, armarios empotrados de alta calidad y baos de diseo.
- Espectacular recibidor con una gran cristalera que enmarca las vistas a Sant Salvador.
La propiedad contar con certificacin energtica A, gracias a su fachada de piedra natural, excelentes aislamientos y cerramientos de mxima calidad.
Equipamientos y calidades premium:
- Piscina privada
- Aire acondicionado fro/calor
- Suelo radiante
- Placas solares y sistema de aerotermia
- Grifera Hansgrohe y baera Inari
- Pavimentos Vonn Light interiores y exteriores (tratamiento antideslizante)
- Pintura a la cal y carpintera exterior de diseo
- Puertas de nogal con bisagras ocultas y cerradura magntica
- Armarios modulares de nogal con interior textil y detalles en rafia, iluminacin LED integrada
- Mobiliario de diseo incluido
La finca se entregar completamente acondicionada e incluir un viedo con licencia, aportando an ms carcter a la propiedad. Adems, la parcela permite una ampliacin de unos 140 m, que puede destinarse a una ampliacin de la vivienda o a una casa de invitados independiente.
Un refugio de serenidad y exclusividad donde la naturaleza es protagonista, a escasos minutos de Cala Torta joya del Mediterrneo, del pintoresco Art y a tan solo 11 km de la vibrante Cala Ratjada.

Datos

Referencia
P2TO192
Tipo
Fincas y solares
Ciudad
Artà
Zona
Artà
Planta
0
CP
07570

Características

Habitaciones
4
Baños
4
Aseos
1
Antigüedad
2025
Superficie construida
290m2
Superficie parcela
31475m2
Estado
Obra Nueva
Orientación
Sur

Extras

Calefacción
Terraza
Califcación energética En trámites
Consumo kW h/m2 Año
Emisiones Kg CO2/m2 Año
A
Más eficiente
B
C
D
E
F
G
Menos eficiente
Contacta con el agente