En venta
0 habs. 0 bañ. 1648m2
En una de las zonas con ms vida y encanto de Manacor, rodeada de calles peatonales, plazas con afluencia constante y una alta densidad residencial, se encuentra este edificio de uso exclusivamente comercial, anteriormente sede de las conocidas Galeras Caldentey.
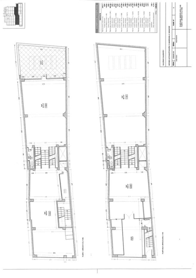
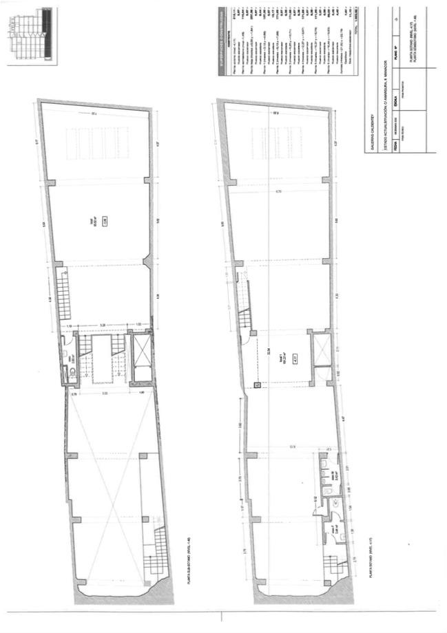
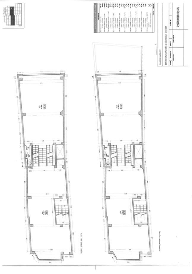
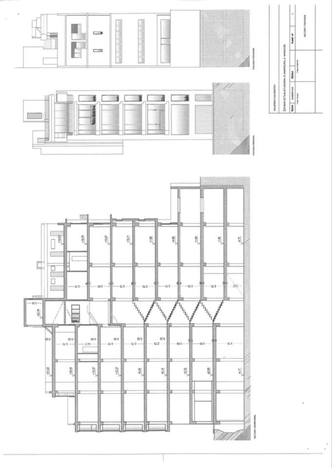
La propiedad cuenta con un total de 1648 m distribuidos en 6 plantas, todas comunicadas por ascensor, lo que facilita su uso integral o por niveles.
Consta de: 5 plantas comerciales distribuidas en planta baja, una de ellas destinada a vivienda, stano y 3 terrazas.
Ubicado en una zona estratgica para el desarrollo de cualquier actividad comercial, con gran trnsito de personas durante todo el ao gracias a su proximidad a numerosos servicios, centros educativos, comercios, parques y residencias.
El inmueble cuenta con todas las infraestructuras urbansticas exigibles: electricidad, agua potable, alcantarillado, telefona y red de pluviales, con conexiones a pie de edificio y totalmente soterradas.
Ideal para inversin o proyecto comercial a gran escala
Esta ubicacin privilegiada dentro del centro histrico de Manacor destaca por su combinacin de encanto tradicional y gran movimiento comercial, en una zona con amplia demanda de servicios y productos por parte de los vecinos y visitantes.
Perfectamente comunicado mediante estacin de tren y autobuses con enlace a Palma y otros ncleos de la isla, y en un entorno urbano en pleno desarrollo.
Una oportunidad nica para crear un espacio comercial de referencia en uno de los municipios con mayor actividad econmica del Llevant mallorqun.

Datos

Referencia
100CA3994
Tipo
Casas o chalets
Ciudad
Manacor
Zona
Manacor Centro
Planta
0
CP
07500

Características

Habitaciones
0
Antigüedad
1965
Superficie útil
1400m2
Superficie construida
1648m2
Superficie parcela
220m2
Estado
Buen estado

Extras

Ascensor
Garaje
Terraza
Califcación energética Aportado
Consumo kW h/m2 Año
Emisiones Kg CO2/m2 Año
A
Más eficiente
B
C
D
E
F
G
Menos eficiente
269
66.3
Contacta con el agente