En venta
0 habs. 0 bañ. m2
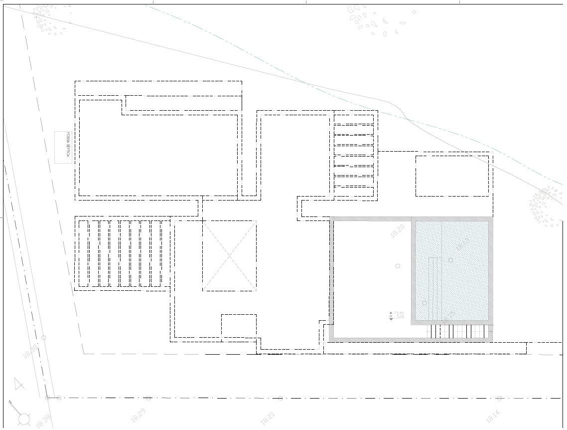
En Es Cam de Sa Rpita, una de las zonas costeras ms exclusivas de Mallorca, se encuentra a la venta este terreno cercado de 14.119 m, con licencia para construir. El proyecto contempla una vivienda moderna distribuida en varias plantas: en el stano se ubicarn las instalaciones, mientras que la planta baja ofrece un amplio y luminoso recibidor, un saln en dos ambientes con cocina abierta y una zona de noche con dos dormitorios dobles con armarios empotrados, un bao completo y una suite principal con vestidor y bao en suite. Desde aqu se accede a un porche de 11 m y a la piscina de 34 m. La planta superior alberga una espectacular master suite con salida a una terraza desde donde se disfrutan vistas despejadas al jardn y la piscina.
Todo esto a solo cinco minutos de la playa de Sa Rpita, y a apenas diez minutos de Ses Covetes y la famosa playa de Es Trenc, ofreciendo una combinacin nica de tranquilidad, privacidad y cercana al mar. Conseguir un terreno de ms de 14.000 m tan prximo a suelo urbano es prcticamente imposible, lo que convierte esta propiedad en una oportunidad nica para crear tu hogar soado o para promotores en busca de un proyecto con gran potencial.

Datos

Referencia
P2TO189
Tipo
Fincas y solares
Ciudad
Campos
Zona
Sa ràpita
Planta
0
CP
07639

Características

Habitaciones
0
Superficie parcela
14199m2
Estado
Buen estado

Extras

Califcación energética En trámites
Consumo kW h/m2 Año
Emisiones Kg CO2/m2 Año
A
Más eficiente
B
C
D
E
F
G
Menos eficiente
Contacta con el agente