Obra nueva
4 habs. 5 bañ. 290.00m2
A tan solo 5 minutos del pintoresco pueblo de Artà, en una espectacular parcela de más de 31.000 m², se alza esta propiedad única que combina tradición, naturaleza y diseño contemporáneo. Lo que en su día fue una histórica vaquería se ha transformado en un proyecto residencial exclusivo para los amantes del campo y la vida mediterránea.
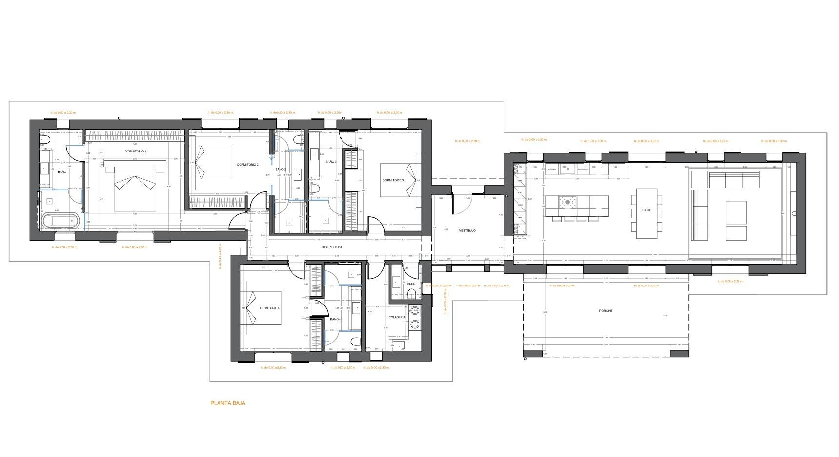
La vivienda, de 290 m² en una sola planta, destaca por su arquitectura elegante y funcional, con espacios amplios, luminosos y unas impresionantes vistas al entorno natural y al majestuoso Sant Salvador, que ilumina las noches de la finca.
Distribución y espacios:
- Amplio salón-comedor con ambientes diferenciados y acceso directo al exterior por ambos lados.
- Moderna cocina de diseño abierta, totalmente equipada.
- 4 suites exteriores, todas con salida a la terraza, armarios empotrados de alta calidad y baños de diseño.
- Espectacular recibidor con una gran cristalera que enmarca las vistas a Sant Salvador.
La propiedad contará con certificación energética A, gracias a su fachada de piedra natural, excelentes aislamientos y cerramientos de máxima calidad.
Equipamientos y calidades premium:
- Piscina privada
- Aire acondicionado frío/calor
- Suelo radiante
- Placas solares y sistema de aerotermia
- Grifería Hansgrohe y bañera Inari
- Pavimentos Vonn Light interiores y exteriores (tratamiento antideslizante)
- Pintura a la cal y carpintería exterior de diseño
- Puertas de nogal con bisagras ocultas y cerradura magnética
- Armarios modulares de nogal con interior textil y detalles en rafia, iluminación LED integrada
- Mobiliario de diseño incluido
La finca se entregará completamente acondicionada e incluirá un viñedo con licencia, aportando aún más carácter a la propiedad. Además, la parcela permite una ampliación de unos 140 m², que puede destinarse a una ampliación de la vivienda o a una casa de invitados independiente.
Un refugio de serenidad y exclusividad donde la naturaleza es protagonista, a escasos minutos de Cala Torta joya del Mediterráneo, del pintoresco Artà y a tan solo 11 km de la vibrante Cala Ratjada.

Datos

Referencia
P2TO192/3207
Tipo
Finca rústica
Ciudad
Artà
Zona
Artà
Planta
0
CP
07570

Características

Habitaciones
4
Baños
4
Aseos
1
Antigüedad
2025
Distancia de la playa
10 metros
Superficie construida
290.00m2
Superficie parcela
31475m2
Estado
Obra Nueva
Carpintería exterior
Aluminio
Carpintería interior
Macizas
Tipo de suelo
noexiste
Orientación
Sur
Cocina

Extras

Jardín
Lavanderia
Luminoso
Muebles
Piscina propia
Terraza
Videoportero
Califcación energética En trámites
Consumo kW h/m2 Año
Emisiones Kg CO2/m2 Año
A
Más eficiente
B
C
D
E
F
G
Menos eficiente
Contacta con el agente