En venta
4 habs. 2 bañ. 222.00m2
MARRATXÍ - SON AMETLER - CALLE DEL MAGRANER. Se vende chalet rústico, ubicado en zona tranquila y cercano a zonas verdes, sobre un solar de 1.440 m2.
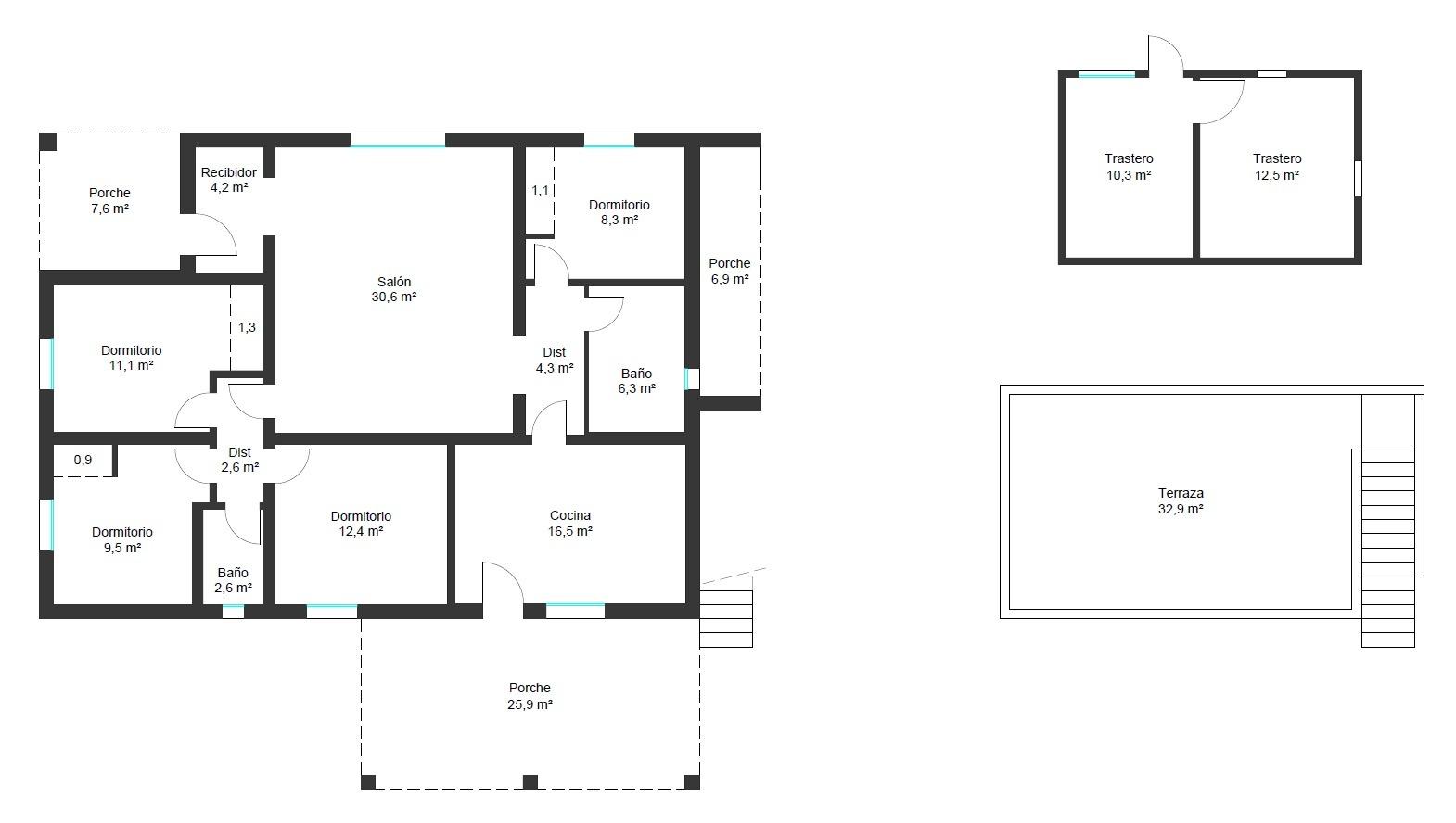
La vivienda principal, construida toda en una planta, consta de 140 m2, distribuidos en 4 dormitorios dobles (3 de ellas con armarios empotrados), 1 baño completo con ducha, 1 aseo de cortesía, cocina amueblada e independiente, salón-comedor con chimenea, amplio porche cenador y terraza la cual rodea la vivienda.
Piscina pre fabricada, trastero y amplio jardín. El resto de la parcela dispone de zona para estacionamiento de varios vehículos.
Entre otra calidades, la vivienda dispone de calefacción por gasoil, carpintería exterior de P.V.C con climalit, interior de madera, suelos de gres y paneles solares para reducir costes energéticos.
Luz de Gesa y agua de pozo comunitario.
CÉDULA DE HABITABILIDAD VIGENTE.
Precio: 669.000 euros.

Datos

Referencia
02269/3235
Tipo
Chalet
Ciudad
Marratxí
Zona
Son Ametller
Planta
0
CP
07141

Características

Habitaciones
4
Baños
2
Salón
1
Antigüedad
1985
Superficie útil
140.00m2
Superficie construida
222.00m2
Superficie parcela
1440m2
Superficie salón
30.60m2
Estado
Buen estado
Carpintería exterior
Aluminio Climalit
Carpintería interior
Madera
Tipo de suelo
Gres

Extras

Garaje
Jardín
Luminoso
Terraza
Trastero

Entorno

Urbanización
Califcación energética Aportado
Consumo kW h/m2 Año
Emisiones Kg CO2/m2 Año
A
Más eficiente
B
C
D
E
166.6
43.9
F
G
Menos eficiente
Contacta con el agente