En venta
3 habs. 2 bañ. 91.00m2
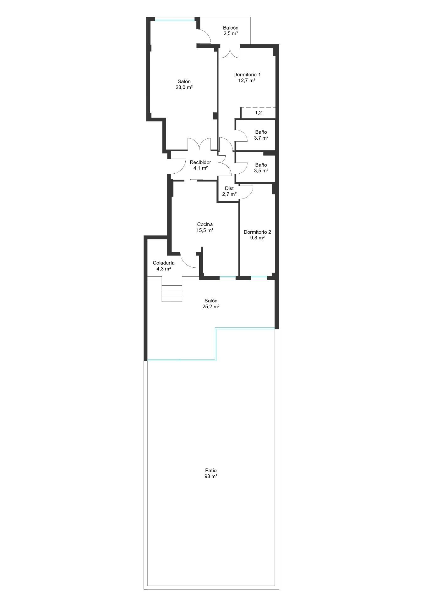
PALMA- ZONA PLAZA DE TOROS - CALLE ARCHIDUQUE LUIS SALVADOR. Se vende piso de 90 m2, distribuidos en 3 habitaciones (dos de ellas con armario empotrado), 2 baños completos (uno de ellos en suite), salón comedor desde el cual tenemos acceso a un balcón con vistas a la calle. Cocina amueblada e independiente y coladuría.
La vivienda dispone de una terraza acristalada 25 m2 que nos da acceso a otra terraza de 93 m2.
En su día, la tercera habitación se la dieron a la cocina.
El piso está situado en una primera altura en una finca con ascensor.
Precio: 414.000 Euros.

Datos

Referencia
02343/3235
Tipo
Piso
Ciudad
Palma de Mallorca
Zona
Plaza de Toros
Altura
1
Planta
1
CP
07004

Características

Habitaciones
3
Baños
2
Nº Plantas
1
Antigüedad
1999
Gastos de comunidad
120€/mes
Superficie útil
90.00m2
Superficie construida
91.00m2
Superficie salón
25.20m2
Estado
Buen estado
Carpintería exterior
Aluminio Climalit
Carpintería interior
Madera
Tipo de suelo
Gres

Extras

Terraza
Califcación energética Aportado
Consumo kW h/m2 Año
Emisiones Kg CO2/m2 Año
A
Más eficiente
B
C
D
E
168.4
48.2
F
G
Menos eficiente
Contacta con el agente