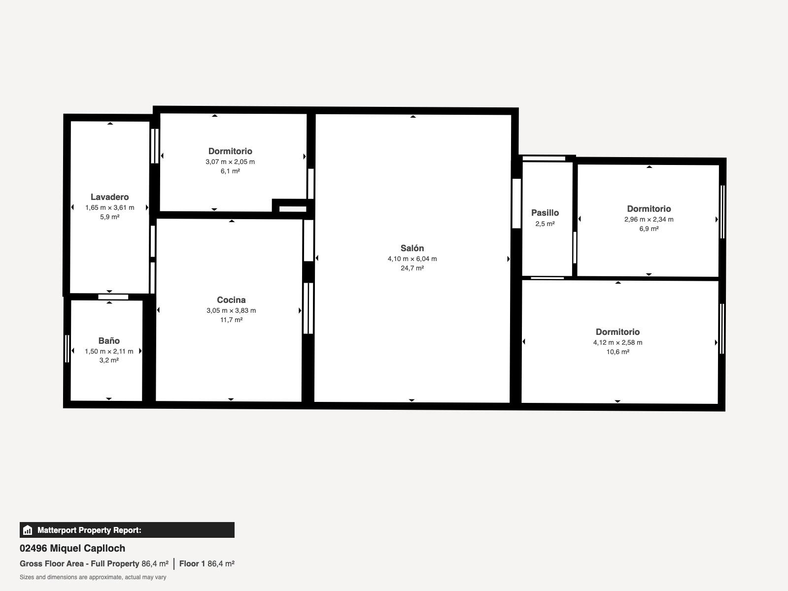
3 habs. 1 bañ. 82.00m2

¿Buscas dejar de pagar alquiler y empezar tu propia historia? Este tercer piso es el lienzo en blanco perfecto para quienes buscan luz, comodidad y una ubicación estratégica. Situado en el límite entre Cas Capiscol y Camp Redó, tendrás todo a un paso: desde las compras en Carrefour y el ocio de Ocimax, hasta centros médicos, colegios y una conexión rapidísima con la Vía de Cintura y el centro de Palma.
Lo que te enamorará de tu nueva casa:
Luz a raudales: Olvídate de pisos oscuros. Gracias a sus claraboyas y su altura, el salón es una explosión de luz natural.
Confort todo el año: Disfruta de inviernos acogedores junto a la chimenea del salón y veranos frescos gracias a los ventiladores de techo y el sistema de aire acondicionado split.
Calidad de vida: 3 habitaciones ideales para teletrabajar o ampliar la familia, cocina equipada y ventanas de PVC Climalit para que el ruido de la ciudad se quede fuera y el ahorro energético se quede dentro.
¿El tema del tercer piso sin ascensor? Míralo de esta forma: es tu "gimnasio privado" diario que te mantendrá en forma sin pagar cuotas. Además, vivir en la planta superior te garantiza vecinos más tranquilos (nadie caminando sobre tu cabeza) y, lo mejor de todo, ¡unos gastos de comunidad mínimos! Es la inversión inteligente para empezar con buen pie.
El precio de venta indicado no incluye el Impuesto de Transmisiones Patrimoniales (ITP), que será orientativamente del 8 %, ni los gastos notariales y registrales, estimados orientativamente en un 2 % del valor de la compraventa, los cuales deberán ser abonados por la parte compradora al firmar la correspondiente escritura pública. El importe de los impuestos se calcula sobre el precio final que conste en la escritura pública y puede variar en función de la normativa aplicable, así como de las subvenciones, ayudas, edad y demás circunstancias personales del contribuyente.
Los honorarios de la agencia inmobiliaria serán asumidos íntegramente por la parte vendedora, no suponiendo coste alguno para la parte compradora.
Inmobiliaria Inscrita en el Registre Oficial de Agents Immobiliaris de les Illes Balears con el NÚMERO REGISTRO: GOIBE747077/2024

Datos

Referencia
02496/3011
Tipo
Piso
Ciudad
Palma de Mallorca
Zona
Cas Capiscol
Planta
3
CP
07010

Características

Habitaciones
3
Baños
1
Antigüedad
1961
Superficie útil
72.00m2
Superficie construida
82.00m2
Estado
Buen estado
Carpintería exterior
PVC Climalit
Carpintería interior
noexiste
Tipo de suelo
Tarima Flotante
Orientación
Sur
Cocina

Extras

Califcación energética Aportado
Consumo kW h/m2 Año
Emisiones Kg CO2/m2 Año
A
Más eficiente
B
C
D
E
183.1
F
54.8
G
Menos eficiente
Contacta con el agente