En venta
2 habs. 2 bañ. 130.00m2
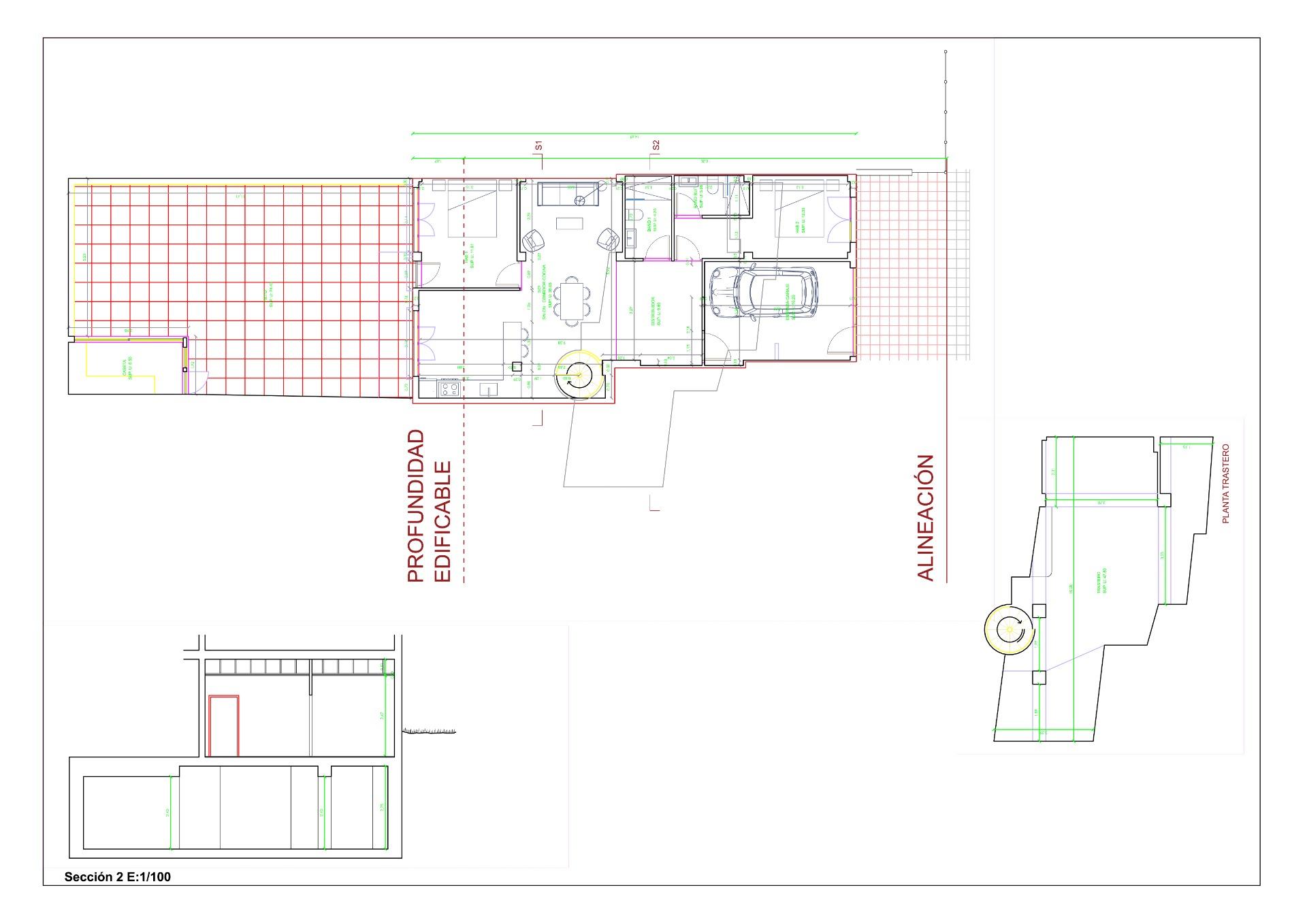
De local comercial a hogar mediterráneo: salón–cocina integrados, 2 dormitorios, 2 baños, escalera helicoidal a planta inferior multiusos (50 m²) y gran terraza de 90 m² en planta.
Estrena vivienda en Coll d’en Rabassa tras una transformación integral con estética mediterránea. La planta principal reúne un amplio salón–comedor con cocina integrada, dos dormitorios y un baño completo. Acabados en blanco roto, madera clara, suelo continuo mate y grifería negra crean un ambiente cálido y atemporal.
Un distribuidor protagonizado por una elegante escalera helicoidal conecta con la planta inferior (50 m²) destinada a usos complementarios —estudio, ocio, almacenaje—. Proyecto fiel a planos, de líneas limpias y gran luminosidad, en una ubicación consolidada de Palma.
Nota: la planta inferior no computa como superficie habitable.

Datos

Referencia
P0IM128/3207
Tipo
Planta baja
Ciudad
Palma de Mallorca
Zona
Coll dEn Rabassa
Altura
PB
Planta
0
CP
07007

Características

Habitaciones
2
Baños
2
Nº Plantas
PB
Antigüedad
1975
Superficie útil
113.00m2
Superficie construida
130.00m2
Estado
En construcción
Carpintería exterior
Aluminio Climalit
Orientación
Este Oeste

Extras

Califcación energética En trámites
Consumo kW h/m2 Año
Emisiones Kg CO2/m2 Año
A
Más eficiente
B
C
D
E
F
G
Menos eficiente
Contacta con el agente