2 habs. 1 bañ. 63.64m2

Film Houses tiene el placer de presentarles este apartamento en alquiler en el Paseo Marítimo de Palma de Mallorca , una propiedad que combina vistas al mar, luminosidad y una ubicación privilegiada frente al Mediterráneo. Pensado para quienes desean disfrutar del estilo de vida urbano de Palma con el mar como protagonista, este inmueble ofrece una excelente oportunidad para vivir en una de las zonas más emblemáticas de la ciudad.
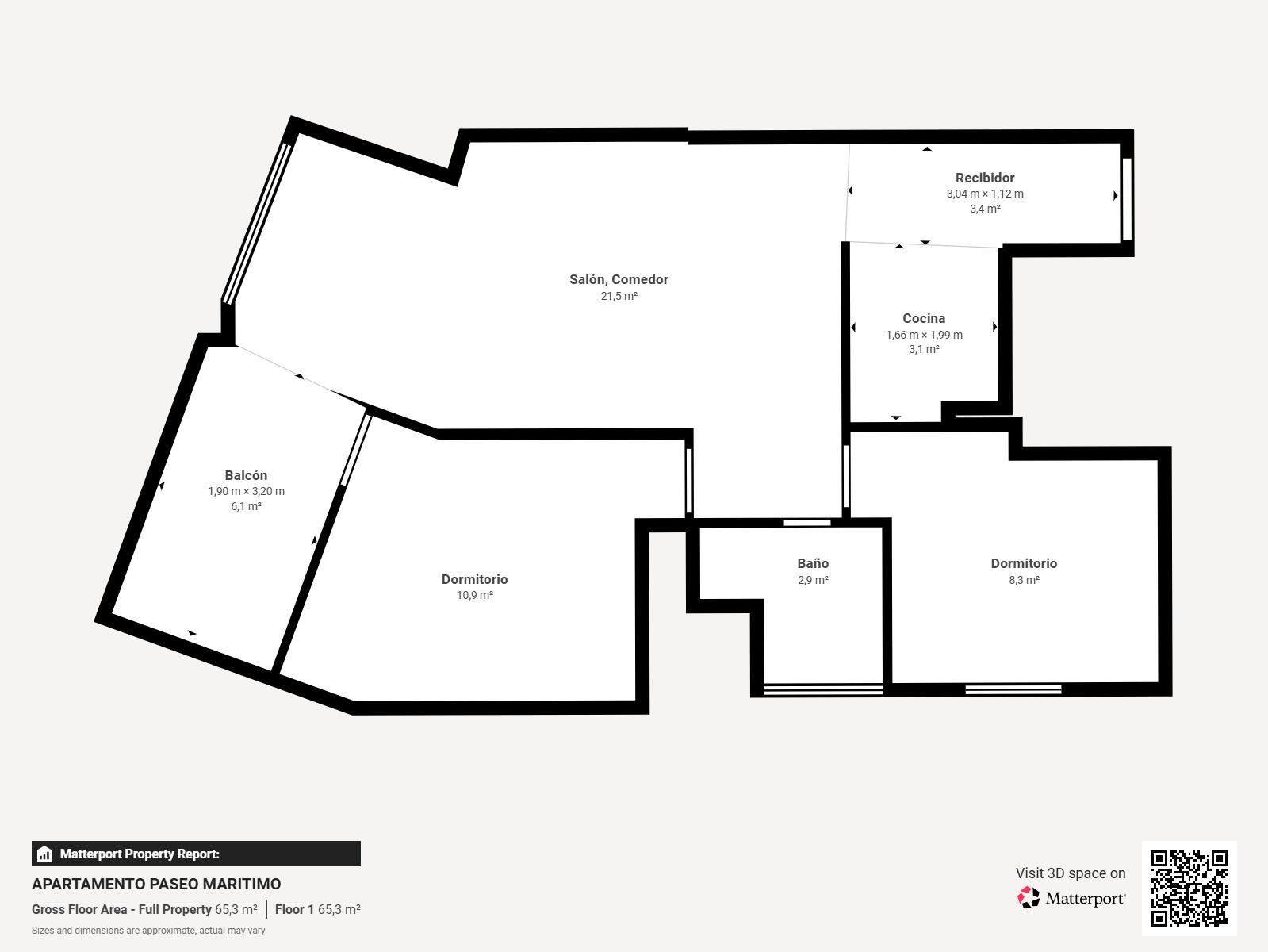
La vivienda cuenta con una superficie aproximada de 63,64 m², distribuidos en 2 dormitorios dobles y 1 baño, además de un salón comedor amplio y luminoso conectado con una terraza privada. El inmueble forma parte de un edificio residencial en el Paseo Marítimo y ha sido diseñado para ofrecer comodidad y funcionalidad durante todo el año.
Entre sus elementos más destacados encontramos cocina totalmente equipada y amueblada, vivienda completamente amueblada, armarios empotrados, suelo de baldosa y una agradable terraza con vistas abiertas, lo que la convierte en una opción ideal tanto para quienes buscan residir en Palma con todas las comodidades como para quienes desean una vivienda lista para entrar a vivir en una ubicación privilegiada.
En el interior, destaca el salón comedor con acceso directo a la terraza de aproximadamente 10,80 m², un espacio perfecto para disfrutar de la luz natural y de las espectaculares vistas al mar, a la Catedral de Palma y al Castillo de Bellver. La terraza se convierte en un lugar ideal para relajarse, comer al aire libre o contemplar el paisaje y el ambiente del Paseo Marítimo.
Los dos dormitorios son dobles y cuentan con armarios empotrados, ofreciendo espacios cómodos y funcionales. La segunda habitación puede utilizarse como dormitorio adicional, despacho o habitación para invitados.
La propiedad se presenta amueblada y lista para entrar a vivir, permitiendo al futuro inquilino instalarse desde el primer día y disfrutar de una vivienda cómoda en una de las mejores ubicaciones de Palma.
La propiedad se ubica en el Paseo Marítimo de Palma de Mallorca, una de las áreas más demandadas de la ciudad, conocida por sus vistas al puerto, su cercanía al centro de Palma y su amplia oferta gastronómica y de ocio. En los alrededores encontrará restaurantes, supermercados, transporte público, zonas de paseo y el puerto deportivo, lo que convierte esta ubicación en una elección excelente tanto para vivir todo el año como para disfrutar del estilo de vida mediterráneo.
No dejes pasar esta oportunidad en Mallorca. Contacta con Film Houses Mallorca para recibir toda la información o concertar una visita y descubrir tu nuevo hogar en el Paseo Marítimo de Palma de Mallorca.

Datos

Referencia
1002/4292
Tipo
Piso
Ciudad
Palma de Mallorca
Zona
Paseo Marítimo
Planta
8
CP
07014

Características

Habitaciones
2
Baños
1
Superficie útil
62.00m2
Superficie construida
63.64m2
Estado
Buen estado
Tipo de suelo
noexiste
Cocina

Extras

Puerta blindada
Terraza
Califcación energética Aportado
Consumo kW h/m2 Año
Emisiones Kg CO2/m2 Año
A
Más eficiente
B
C
D
E
25.92
F
G
Menos eficiente
68.62
Contacta con el agente